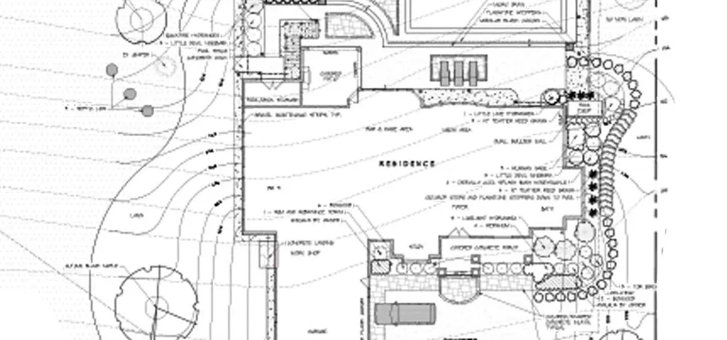
AgreementNovember 19, 2018PermitsNovember 19, 2018 Pool and equipment placement Subcontractor and landscaper selections Landscape and construction plans Customer final selections Ampersand